FOR LEASE: INDUSTRIAL SPACE
- $1.35/sf
Property Description
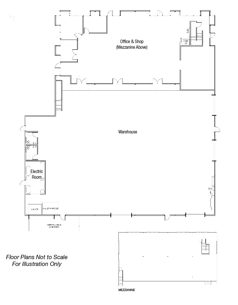
Building/Space Description:
This single-tenant warehouse space includes 5 roll-up doors, heavy power, 2 restrooms and office space. There are numerous personnel doors for entry. The mezzanine is built to accommodate heavy loads. Numerous skylights.
Location Description:
Located in the Petaluma Industrial Park, with easy access from Highway 101, restaurants, shops and other services immediately available, and a work force with technical manufacturing
experience.
HIGHLIGHTS:
• 5 Roll-Up Doors
• 18’ +/- Clear Height
• 2 Restrooms
• No Automotive Use
• Easy Access to Hwy. 101
View Property Brochure
1328 Scott St LEASE FLYER 3-18-26
Address
Open on Google Maps-
Address: 1328 Scott Street
-
City: Petaluma
-
State/county: California
-
Zip/Postal Code: 94954
-
Area: Sonoma County
Property Details
Updated on April 14, 2026 at 11:47 am-
Property ID HL(ID)
-
Price $1.35/sf
-
Available Square Feet 17,000 +/- sf
-
Property Type Industrial
-
Property Status For Lease
-
Lease Term 3 - 5 Years
-
Available Now
-
Lease Type Industrial Gross
Property Features
Walkscore
No warranty or representation, express or implied, is made as to the accuracy of the information contained herein, and same is submitted subject to errors, omissions, change of price, rental or other conditions, withdrawal without notice, and to any special listing conditions by our principals. The prospective purchaser/lessee should independently verify all information.





